STUNNING CHARACTER HOME WITH MODERN FAMILY APPEAL
Perfectly positioned in the hugely sought after suburb of Mount Hawthorn, this beautifully renovated character home combines timeless charm with sophisticated thoughtful modern updates. Set on a generous 564m² block, every detail has been carefully considered to blend heritage elegance with effortless contemporary living. Step inside and be greeted by high ceilings, ornate cornices, and polished timber floors that immediately set the tone for the warmth and character this home exudes.
At the heart of the home lies a designer kitchen, a true dream for any home chef and one of the many renovations and additions the current owner has introduced to this beautiful home. Featuring expansive stone benchtops, an abundance of quality custom cabinetry, and premium appliances, this space seamlessly balances beauty and function. Every element has been crafted for both style and practicality, offering ample storage and a light-filled design perfect for entertaining or family gatherings.
The open plan kitchen, dining, and living area flows beautifully together - spacious, inviting, and designed for modern family life. You will adore the formal lounge with a feature wood-burning fireplace providing a cosy retreat. The expansive undercover decked alfresco, creates a seamless indoor-outdoor lifestyle ideal for year-round enjoyment.
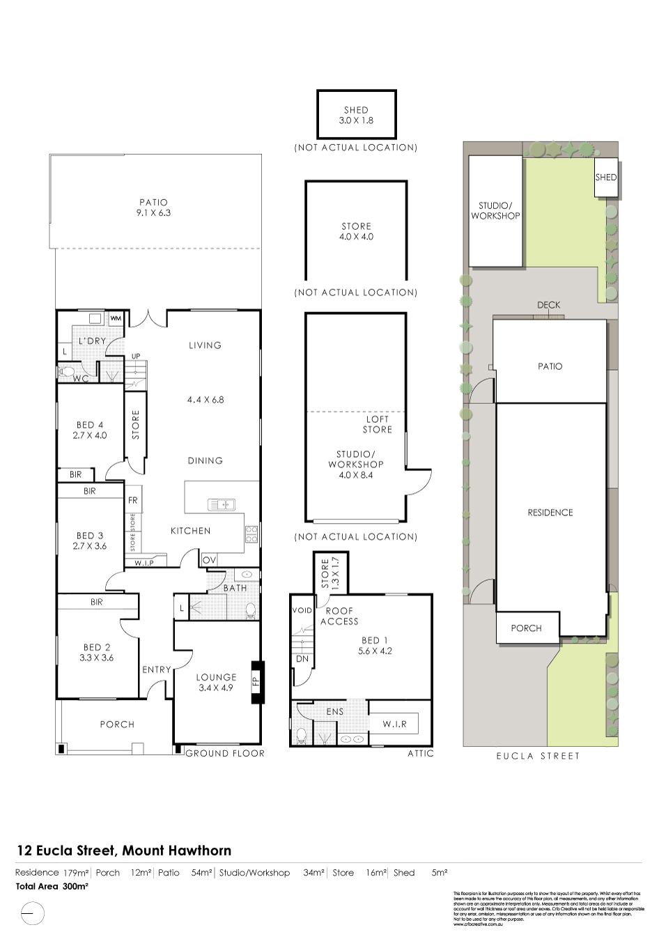
Upstairs, parents can unwind in their private sanctuary featuring a master suite with walk-in robe and ensuite, thoughtfully separated from the three well-sized downstairs bedrooms.
In the backyard you will find a huge powered insulated panel multipurpose space - studio, gym, workshop or music room. A welcomed versatile addition, separate from the main home providing somewhere ideal for creative pursuits or a teenage retreat. An additional bathroom located at the rear of the property provides convenient access from the outdoor areas.
This home offers the perfect combination of comfort, functionality, and style with multiple living zones, quality finishes throughout, and low-maintenance landscaped gardens that make family living truly effortless.
Features You'll Love
• Beautifully renovated character home set on a generous 564m² block
• Character details including high ceilings, decorative cornices & solid timber floors
• Upstairs master bedroom retreat with walk-in robe & ensuite
• Three good size downstairs bedrooms all with BIR's
• Designer kitchen, quality appliances cabinetry and breakfast bar
• Modern open plan living, kitchen & dining area
• Formal lounge/sitting room with feature wood fireplace
• Stunning spacious alfresco (with insulated roofing) overlooking beautifully landscaped gardens
• Ducted zoned reverse cycle air-conditioning, split system to main bedroom
• Huge Insulated panel powered studio/workshop/music room
• Gas bayonets, ceiling fans & automatic reticulation
• Sonance ceiling speaker to front veranda and alfresco
• CCTV cameras to external of the home
• Garden shed, easy-care landscaped gardens
CHECK OUT THE FLOOR PLAN!
Location Highlights
• 500m to Menzies Park
• 700m to Mount Hawthorn Primary
• 4.3km to Bob Hawke College
• 1.3km to The Mezz Shopping Centre & Lake Monger
• 3km to Leederville cafés, restaurants and shopping strip
• 3.5km to Westfield Innaloo Shopping Centre
• 5.5km to Perth CBD
Call Marco Marra on 0400 227 136 to register your interest in this amazing Mount Hawthorn home!
