CHARMING CHARACTER COTTAGE IN PRIME LOCATION!!
UNDER CONTRACT! Home open cancelled
Step into this enchanting character cottage, perfectly positioned in one of Mount Hawthorn's most desirable and tightly held locations. Just metres from the vibrant Leederville and North Perth borders, this home offers the ultimate lifestyle convenience-with Oxford Street's bustling café and restaurant scene moments away and easy access to public transport along Loftus and Oxford Streets for a quick trip to the city.
Behind its classic façade lies a home full of warmth and charm. Generous-sized bedrooms feature high ceilings and timeless character detailing, while the separate lounge showcases stunning ornate ceilings and polished timber floors that exude old-world grace. The original kitchen and meals area offer a glimpse into the home's rich history and provide the perfect canvas for a future modern transformation. A versatile study or utility room at the rear overlooks the garden-an ideal space for a home office, hobby room, or a children's play area filled with natural light.
Beautifully presented throughout, the home has been freshly painted in neutral tones, and the original floorboards have been carefully sanded and finished with a soft matte sheen. Important updates have already been completed, including electrical upgrades, giving you peace of mind while preserving the property's charm.
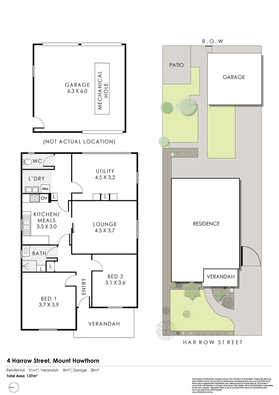
Situated on a generous 463sqm block with a 12.19m frontage, this rare find also features vehicle side access and a rear laneway that leads to a secure lock-up garage-offering practicality to match its character appeal. Ready to move straight in and enjoy yet offering ample opportunity to enhance and extend over time, this delightful home represents a perfect blend of location, charm, and potential in one of Mount Hawthorn's most coveted streets.
• 2 Generous sized bedrooms
• Study/Utility room overlooking the back yard
• Original kitchen/meals area with gas cooktop
• Stunning separate lounge with beautiful ornate ceilings
• Well-appointed original bathroom
• Double lock-up garage
• ROW
• Access to rear of home via side access
• Bore reticulated gardens
• 463 sqm block,12.19 metre frontage
• Beautiful tree lined street scape
• Easy access to and from the city via easily accessible public transport
• Short stroll to Mt Hawthorn's/Leederville Cafe strip
Water rates Approximately $1220 per annum
City of Stirling rates $1765.78 pa
