DEVELOPMENT OPTIONS HERE
Either build and retain or develop to the sites full potential.
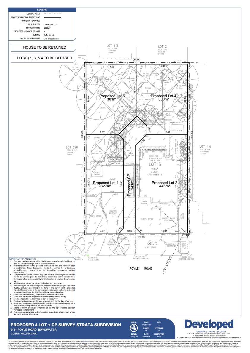
A rare 1518sqm Lot situated on one title, but comprises of two street front blocks with the option of retaining the current home and creating 3 other Lots or build on the whole site as shown with 10 Lots.
It is zoned R60 on the Bayswater Town Centre Structure Plan. (Please ask me for the details and I'll send you the link)
This could be the one you have been waiting for. Properties like this will shortly be a thing of the past so if you are a developer or astute investor don't miss out on this rare opportunity. Only a short stroll to the new Bayswater Train Station plus everything else Bayswater has to offerWelcome to this lovely brick and tile four bedroom, one-bathroom home with two showers and two toilets. Built in 1960 this character home has many sought after features that you would normally find in Inglewood or Mount Lawley. Offering a huge floorspace which includes a large sunroom at the rear of the property, there's lots to enjoy here. Beautiful original Jarrah floorboards, a modern bathroom and a large kitchen which overlooks the dining/living areas and flows nicely to the large sunroom.Most older character homes do not accommodate the growing family but this solid home boasts 4 bedrooms plus a separate home office and high ceilings throughout.
• Have you got a large family? Work from home and need two separate offices or run a home business?
• Are you a Tradie who has always dreamed of having a large workshop totally separate from the family home with its own access and 3 Phase Power?-
• Have you always dreamed of having a spot for the collectable car, the family boat, a large caravan, or the ultimate man cave?-
• Are you thinking how good it would be to have space in the backyard to build a Granny flat which could potentially have its own double garage totally separated from the main home?
• Do you currently have parking issues because you have more than 4 or 5 people in the family who are driving but only have a single garage or a double? 8 cars can easily park here off the street
• Do you want a property that the kids can play safely out the back yard with plenty of space for a dog or some chooks?
• Are you wanting to subdivide/develop or build a new home while having a nice solid character home to live in while doing your developments?
If the answer to any of the above is YES then this is your dream property! You can live in this beautiful home while planning your future developments or rent it out towards covering holding costs while you start your developments.The future development potential for this block means that accessing the R60 ZONING could result in multiple lots being created including the option of Apartments, Villas or Houses.
PROPERTY DETAILS:
• 4 BedroomsRenovated bathroomShower and toilet in outbuilding
• Large sunroom
• Separate study/home office
• Modern kitchen
• High Ceilings
• Air Con and ceiling fans
• Bore reticulated gardens
• Rainwater tank
• Double garage with power
• Wine cellar
• Two separate driveways
Within a short walk to the Bayswater Train Station, Bayswater Hotel and Village Precinct. Only minutes to the Morley Galleria, close to the Embleton Golf Course and Bayswater Waves Pool and Gym Facility. The location boasts both public and private primary and secondary schools including Chisholm College and John Forrest SHS and is only a 5-minute drive to the ECU Mt Lawley Campus.
